We use cookies to ensure that we give you the best experience on our website. If you agree, please click AGREE. Privacy policy
19th place – FITCVL

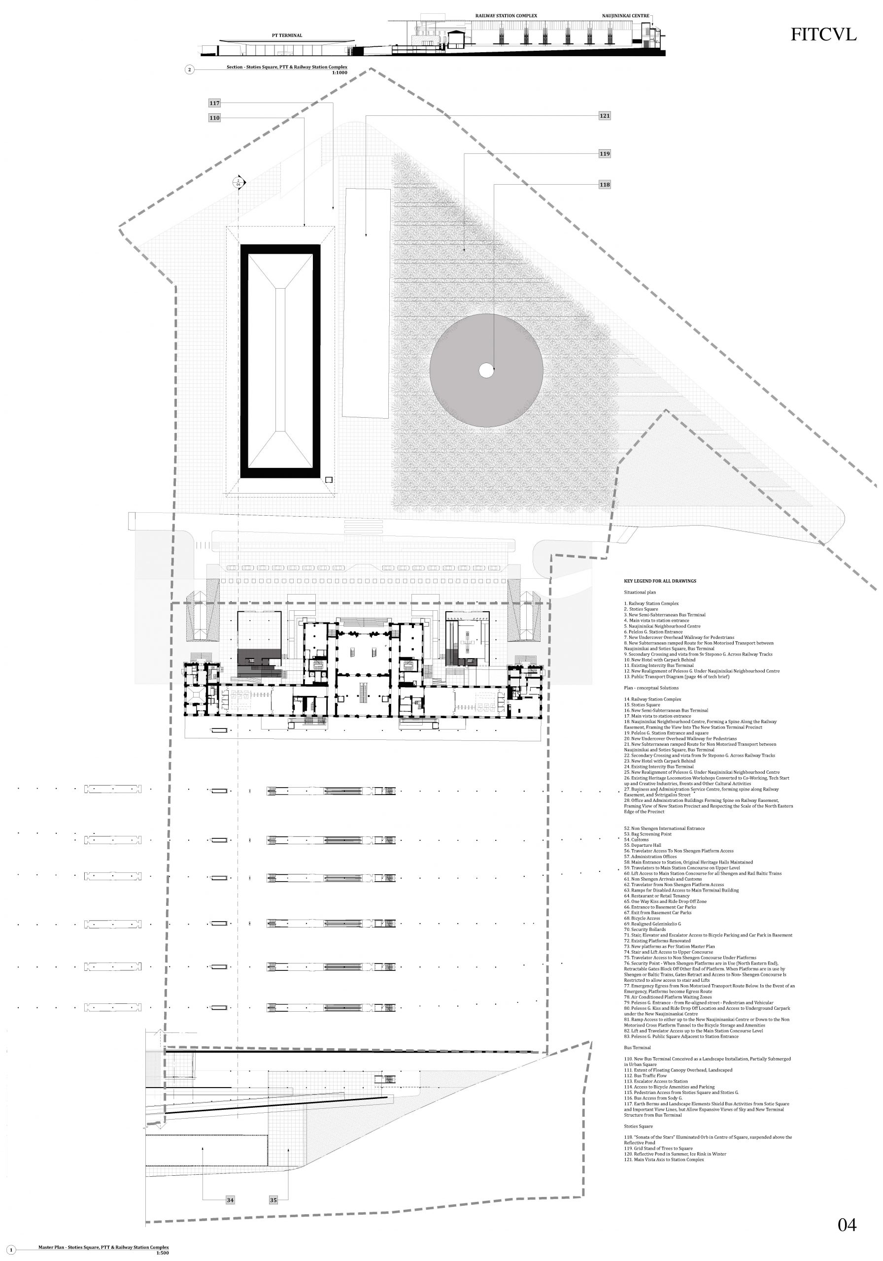
Urban-architectural vision

 

The Urban idea is a comprehensive and intuitive design solution, enabling Vilnius and surroundings to have a connected and attractive public transport hub, fully realizing the benefits of the international Rail Baltica project, and creating an instantly recognizable international transport hub. Fulfilling the requirements of all stakeholders, the Urban idea increases the economic viability of the Territory, prioritizes sustainable transport options and an inclusive community environment, creating an attractive outcome that still preserves the cultural heritage of the industrial area.

 

Becoming the ‘gateway to the city’, the Urban idea for the Vilnius Competition Territory and the Naujininkai Centre communicates a clear visual and tangible connection with the historic Senamiestis and the passenger terminal, encouraging easier movement across the city with increased public transport and cycling connectivity. The overarching roof structure design highlights the rejuvenated space’s expansive connectivity to each transportation section, becoming a beacon for the city on an international scale.

 

The Urban idea balances the modernization of the city’s public transport services model and public spaces with a careful integration of the history and cultural heritage aspects of the city of Vilnius, and in particular, the historically industrial Station district. Supporting the essential operational activities of the LTG: economic progress, social partnership and environment protection, the Urban idea supports each of these pillars through design solutions:

 

• Economic progress, through high-quality multifunctional public spaces; connected public transport; increased commercial opportunities.

• Social partnership, through improved community engagement; increased employment opportunities through new space creation; safer traffic solutions.

• Environmental protection, through innovative, best practice, sustainable design; additional green public spaces; locally sourced, sustainable building materials (with a target for BREEAM accreditation).

 

The Naujininkai Centre and surrounding public spaces become a new vibrant urban neighborhood, becoming part of the city, with additional green spaces and planting helping to reduce noise and air pollution. Coherently aligning with the Railway Station Complex, the Naujininkai Centre becomes an active part of the transport hub and local community. Squares complete the vistas from the South, and architectural form reinforces the urban geometry of the broader station precinct.

  • Business name of the Participant: Russell & George Pty Ltd
  • Country: Australia
  • Name and surname of the authors: Ryan Russell, Byron George, Rimgailė Matlasaitytė, Caitlin Ripper